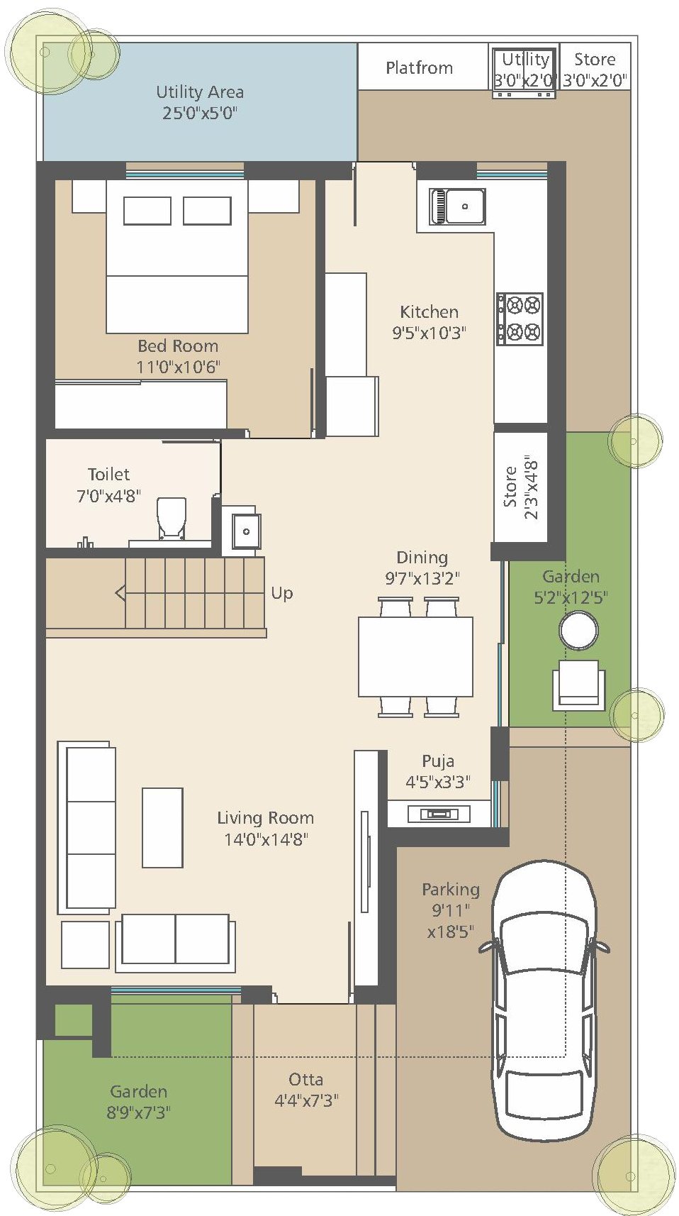
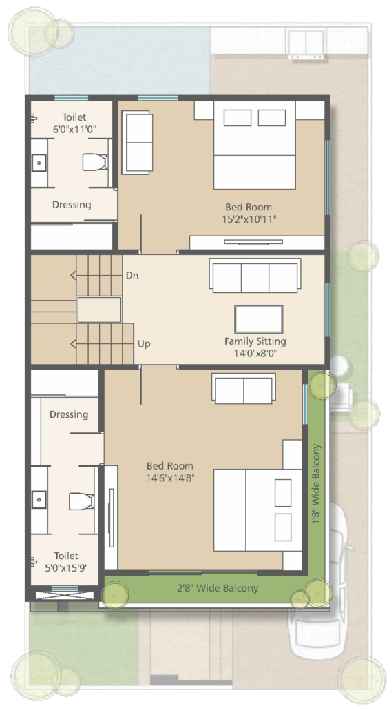
PLOT 1 TO 7 2180 sq. ft. GROUND FLOOR FIRST FLOOR SECOND FLOOR PLOT 8 to 12A 2090 sq. ft. GROUND FLOOR FIRST FLOOR SECOND FLOOR